Preloader
 
 
 
 
 
 

Vivienda Unifamiliar, Lleida

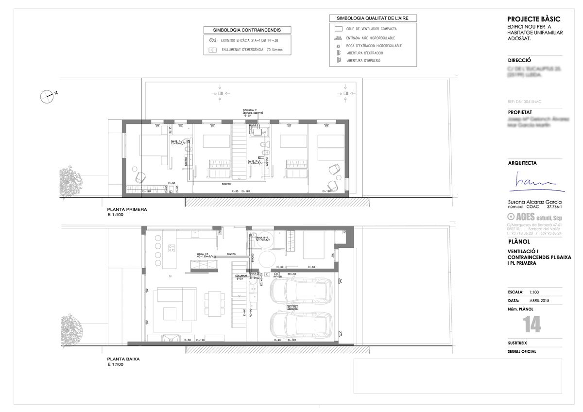
Superficie Construida 220m2

 

ARQUITECTURA MODULAR

 
Arquitectura, diseño y gestión de los recursos energéticos son nuestros imputs de partida en cualquier proyecto. Una casa bioclimática tiene en cuenta las condiciones del terreno, el recorrido del Sol, las corrientes de aire, etc. y otros aspectos de la distribución de los espacios, la apertura y orientación de las ventanas, etc., con el fin de conseguir una eficiencia energética. No se pretende inventar cosas extrañas sino diseñar con las ya existentes y saber sacar el máximo provecho a los recursos naturales que nos brinda el entorno
 

ESTRUCTURA MODULAR EN ACERO

 
La estructura corresponde al sistema constructivo Stell Framing que consiste en un sistema industrializado con acero galvanizado . Se trata de una construcción modular en acero galvanizado que aprovecha la tecnología de acero ligero . Los módulos se fabrican en taller y son transportados a obra , donde son ensamblados . La estructura utilizada está formada por una carcasa de perfiles de acero galvanizado ligero. Este es un material compuesto por una chapa de acero laminada en frío o caliente , que recibe en ambas caras un recubrimiento . El galvanizado está constituido por varias capas de aleaciones zinc-hierro , más duras incluso que el acero , y por una capa externa de zinc que es más blanda , formando un sistema muy resistente a los golpes y a la abrasión . Los perfiles utilizados tienen secciones en U en soleras , así como secciones en C a montantes . Estos están unidos entre sí y con la cimentación mediante tornillos autoperforantes formando paneles la altura de un piso. Estos montantes están separados por una distancia entre 40 y 60 cm en función del modulaje final.
 

 

 

haz click en la imagen para ampliar